Használati útmutató Gewiss GW12776
Olvassa el alább 📖 a magyar nyelvű használati útmutatót Gewiss GW12776 (76 oldal) a rádió kategóriában. Ezt az útmutatót 10 ember találta hasznosnak és 5.5 felhasználó értékelte átlagosan 4.9 csillagra
Oldal 1/76

GW 10 776 GW 12 776 GW 14 776
Ricevitore RF 8 canali Easy - da incasso
8 channel Easy RF receiver - flush-mounted
Récepteur RF 8 canaux Easy - encastrable
Receptor RF 8 canales Easy - empotrable
8-Kanal RF-Empfänger Easy - für Unterputzmontage

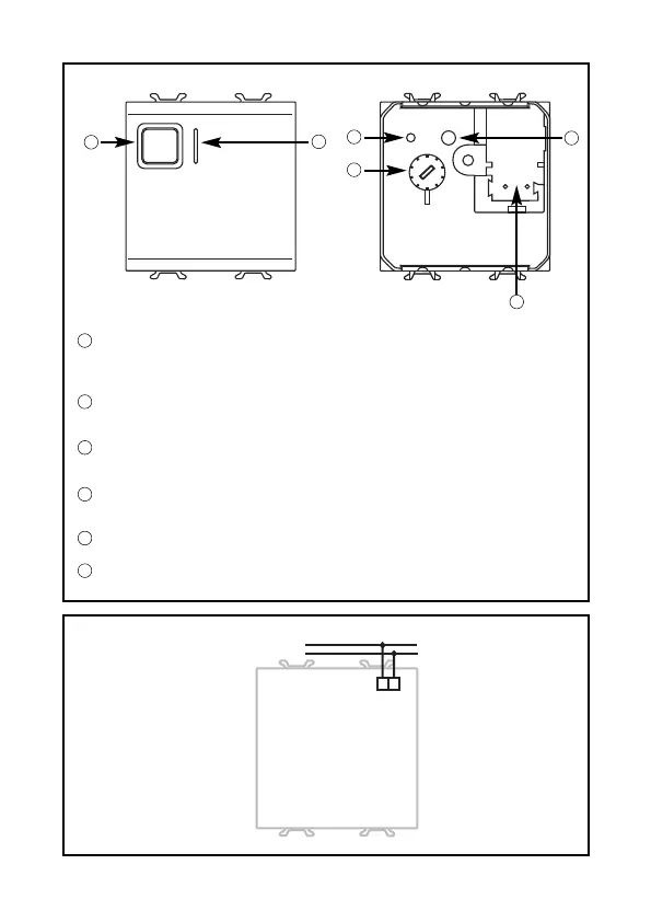
Pulsante di localizzazione canali EIB Easy- Easy EIB channel localization button -
Bouton de localisation des canaux EIB Easy - Pulsador de localización canales EIB Easy -
Lokalisierungstaste Kanäle EIB Easy
LED multifunzione - Multi-function LED - LED multifonctions - LED multifunción -
Multifunktions-LED
LED di programmazione - Programming LED - LED de programmation -
LED de programación - Programmier-LED
Tasto di programmazione - Programming key - Touche de programmation -
Tecla de programación - Programmiertaste
Selettore rotativo - Rotary selector - Sélecteur rotatif - Selector rotativo - Drehschalter
Terminali bus - Bus terminal - Borniers bus - Terminales bus - Busanschlüsse
2
1
3
4
5
2
1
5
4
3
6
7
8
9
0
2
1
6
3
4
+
-
+
-
bus
6
5
A
B

INDICE
3
I
T
A
L
I
A
N
O
pag.
AVVERTENZE GENERALI....................................................................................... 4
DESCRIZIONE GENERALE ..................................................................................... 5
INSTALLAZIONE.................................................................................................... 10
PROGRAMMAZIONE CON UNITÀ BASE EASY....................................................... 13
IN SERVIZIO.......................................................................................................... 15
DATI TECNICI........................................................................................................ 16
Termékspecifikációk
Márka: | Gewiss |
Kategória: | rádió |
Modell: | GW12776 |
Szüksége van segítségre?
Ha segítségre van szüksége Gewiss GW12776, tegyen fel kérdést alább, és más felhasználók válaszolnak Önnek
Útmutatók rádió Gewiss
27 Augusztus 2024
Útmutatók rádió
- rádió Narex
- rádió Majority
- rádió BaseTech
- rádió Nikkei
- rádió ICOM
- rádió Roadstar
- rádió Milwaukee
- rádió Artsound
- rádió Berker
- rádió Trevi
- rádió Toshiba
- rádió Audiosonic
- rádió Majestic
- rádió Swan
- rádió HQ
Legújabb útmutatók rádió
10 Április 2025
2 Április 2025
1 Április 2025
1 Április 2025
31 Március 2025
30 Március 2025
29 Március 2025
26 Március 2025
25 Március 2025
16 Január 2025