Használati útmutató Wolf DO3050PP
Olvassa el alább 📖 a magyar nyelvű használati útmutatót Wolf DO3050PP (2 oldal) a sütő kategóriában. Ezt az útmutatót 9 ember találta hasznosnak és 5 felhasználó értékelte átlagosan 4.5 csillagra
Oldal 1/2

30" E SERIES PROFESSIONAL BUILT-IN DOUBLE OVEN
DO3050PE/S/P
FEATURES
Wolf’s dual convection system—featured in the upper oven cavity—
provides reliably even heat, reduces hot and cold spots, and enables
consistent multi-rack cooking
Enjoy the extra space and versatility of the conventional lower oven
Take the guesswork out of cooking with 10 chef-created cooking modes,
including Bake, Broil, Convection, Convection Roast, Dehydrate,
Gourmet, Proof, Roast, Stone, and Warm
Gourmet Mode, featured in the upper oven, offers nearly 50 presets to
automatically cook a delicious set of impressive dishes
The large full-color touchscreen and stainless touch controls are intuitive
and easy-to-read
The temperature probe alerts you when your dish has reached the
desired temperature
The oven offers self-clean, delayed start, timed cook, and Sabbath
features
Control your oven from wherever you are using our convenient Owner's
App—remotely preheat, adjust temperatures, select modes, and more
Coordinates with other Sub-Zero, Wolf, and Cove appliances to create a
cohesive look in your kitchen
Get the most out of your oven with tips and recipes from the Mastering
the E Series Oven guide
ACCESSORIES
30" Broiler Pan
30" Premier Baking Sheet
30" Standard Oven Rack
Bake Stone Kit
Dehydration Kit
Full-Extension Ball-Bearing Rack
Standard Oven Rack
Temperature Probe
Accessories available through an authorized dealer.
For local dealer information, visit subzero-wolf.com/locator.
Specifications are subject to change without notice. This information was generated on December 11, 2023. Verify specifications prior to finalizing your cabinetry/enclosures.

30" E SERIES PROFESSIONAL BUILT-IN DOUBLE OVEN
PRODUCT SPECIFICATIONS
Model DO3050PE/S/P
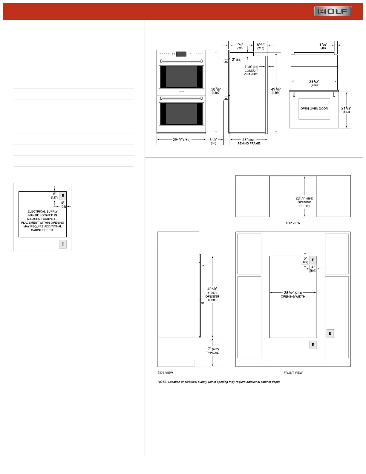
Dimensions 29 7/8"W x 50 7/8"H x 23"D
Oven 1 Interior
Dimensions
25 1/4"W x 17 1/2"H x 18 1/2"D
Oven 2 Interior
Dimensions
25 1/4"W x 17 1/2"H x 18 1/2"D
Overall Capacity 4.7 cu. ft.
Usable Capacity 3.1 cu. ft.
Door Clearance 21 3/8"
Weight 446 lbs
Electrical Supply 240/208 VAC, 60 Hz
Electrical Service 50 amp dedicated circuit
Conduit Length 5 Feet
ELECTRICAL
NOTE: Dimensions in parenthesis are in millimeters unless otherwise
specified
DIMENSIONS
STANDARD INSTALLATION
Specifications are subject to change without notice. This information was generated on December 11, 2023. Verify specifications prior to finalizing your cabinetry/enclosures.
Termékspecifikációk
Márka: | Wolf |
Kategória: | sütő |
Modell: | DO3050PP |
Szüksége van segítségre?
Ha segítségre van szüksége Wolf DO3050PP, tegyen fel kérdést alább, és más felhasználók válaszolnak Önnek
Útmutatók sütő Wolf
2 Április 2025
14 Január 2025
27 December 2024
27 December 2024
27 December 2024
27 December 2024
27 December 2024
16 Október 2024
7 Október 2024
6 Október 2024
Útmutatók sütő
- sütő Iberna
- sütő Eldom
- sütő Brock
- sütő Oranier
- sütő Qlima
- sütő Princess
- sütő PowerXL
- sütő NU-VU
- sütő ILive
- sütő BlueStar
- sütő Omega
- sütő Mabe
- sütő Riviera And Bar
- sütő German Pool
- sütő Waring Commercial
Legújabb útmutatók sütő
10 Április 2025
10 Április 2025
10 Április 2025
10 Április 2025
10 Április 2025
10 Április 2025
10 Április 2025
10 Április 2025
9 Április 2025
9 Április 2025