Használati útmutató Wolf DO30PPH
Olvassa el alább 📖 a magyar nyelvű használati útmutatót Wolf DO30PPH (2 oldal) a sütő kategóriában. Ezt az útmutatót 13 ember találta hasznosnak és 7 felhasználó értékelte átlagosan 4.7 csillagra
Oldal 1/2

LEGACY MODEL - 30" E SERIES PROFESSIONAL BUILT-IN DOUBLE OVEN
DO30PE/S/PH
FEATURES
Cook for a crowd, with two ovens and twice the capacity
The upper cavity controls heat and airflow expertly as dual convection
creates just the right cooking environment for everything from Cornish
hens to cherry pie to butternut squash.
Assures predictably delicious results with a variety of modes, including
Convection Roast, Proof, and Dehydrate
Insert a temperature probe to tell you exactly when it is done—it will alert
you the moment the dish is ready.
Includes options such as self-clean, delayed start, timed cook, Sabbath
mode, and more
Makes a statement with Wolf's iconic professional look and handle
Integrates beautifully into surrounding cabinetry with flush installation
Promotes excellent visibility via two bright halogen lights and large,
double-panel-glass door windows
ACCESSORIES
30" Bake Stone Kit
30" Broiler Pan
Dehydration Kit
Dehydration Kit
Full-Extension Ball Bearing Rack
Premier Baking Sheet
Standard Oven Rack
Temperature Probe
Accessories available through an authorized dealer.
For local dealer information, visit subzero-wolf.com/locator.
Specifications are subject to change without notice. This information was generated on December 11, 2023. Verify specifications prior to finalizing your cabinetry/enclosures.

LEGACY MODEL - 30" E SERIES PROFESSIONAL BUILT-IN DOUBLE OVEN
PRODUCT SPECIFICATIONS
Model DO30PE/S/PH
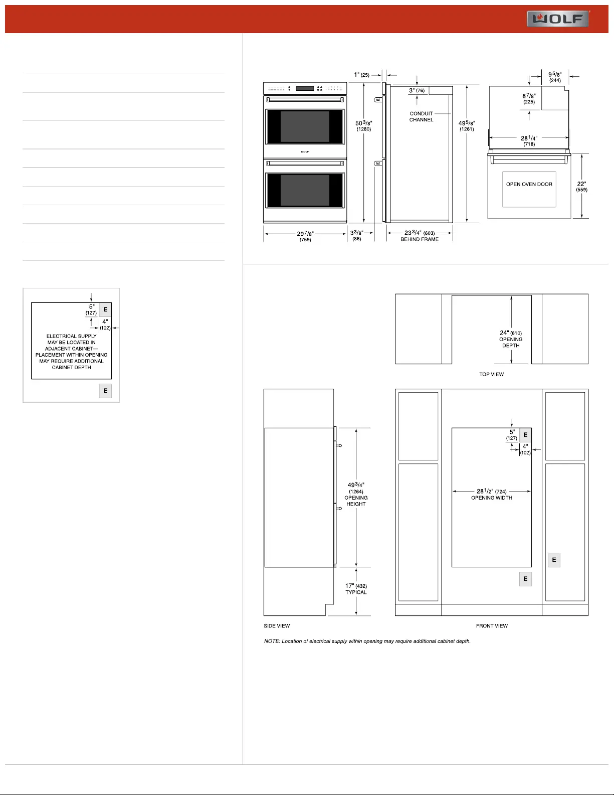
Dimensions 29 7/8"W x 50 3/8"H x 23 3/4"D
Oven 1 Interior
Dimensions
25"W x 16 1/2"H x 19"D
Oven 2 Interior
Dimensions
25"W x 16 1/2"H x 19"D
Overall Capacity 4.5 cu. ft.
Usable Capacity 2.8 cu. ft.
Door Clearance 22"
Electrical Supply 240/208 VAC, 60 Hz
Electrical Service 50 amp dedicated circuit
Conduit Length 5 Feet
ELECTRICAL
NOTE: Dimensions in parenthesis are in millimeters unless otherwise
specified
DIMENSIONS
STANDARD INSTALLATION
Specifications are subject to change without notice. This information was generated on December 11, 2023. Verify specifications prior to finalizing your cabinetry/enclosures.
Termékspecifikációk
Márka: | Wolf |
Kategória: | sütő |
Modell: | DO30PPH |
Szüksége van segítségre?
Ha segítségre van szüksége Wolf DO30PPH, tegyen fel kérdést alább, és más felhasználók válaszolnak Önnek
Útmutatók sütő Wolf
2 Április 2025
14 Január 2025
27 December 2024
27 December 2024
27 December 2024
27 December 2024
27 December 2024
16 Október 2024
7 Október 2024
6 Október 2024
Útmutatók sütő
- sütő Izzy
- sütő Tesla
- sütő Fine Dine
- sütő Emax
- sütő BEEM
- sütő Swan
- sütő Ernesto
- sütő BSK
- sütő Mx Onda
- sütő Siemens
- sütő Scandomestic
- sütő OBU
- sütő Efbe-Schott
- sütő BLANCO
- sütő Curtiss
Legújabb útmutatók sütő
10 Április 2025
10 Április 2025
10 Április 2025
10 Április 2025
10 Április 2025
10 Április 2025
10 Április 2025
10 Április 2025
9 Április 2025
9 Április 2025