Használati útmutató Gewiss GW12756
Gewiss
mozgásérzékelő
GW12756
Olvassa el alább 📖 a magyar nyelvű használati útmutatót Gewiss GW12756 (64 oldal) a mozgásérzékelő kategóriában. Ezt az útmutatót 13 ember találta hasznosnak és 7 felhasználó értékelte átlagosan 4.6 csillagra
Oldal 1/64

GW 10 756 GW 12 756 GW 14 756
Rivelatore di movimento IR con crepuscolare
Easy - da incasso
IR movement detector with Easy twilight switch -
flush-mounted
Détecteur de mouvement IR avec capteur crépusculaire Easy -
encastrable
Detector de movimiento IR con crepuscular Easy-empotrable
IR Funk-Bewegungsmelder mit Dämmerungsschalter Easy -
für Unterputzmontage

+
-
+
-
bus
A
B
1
5
6
2
3
4
7
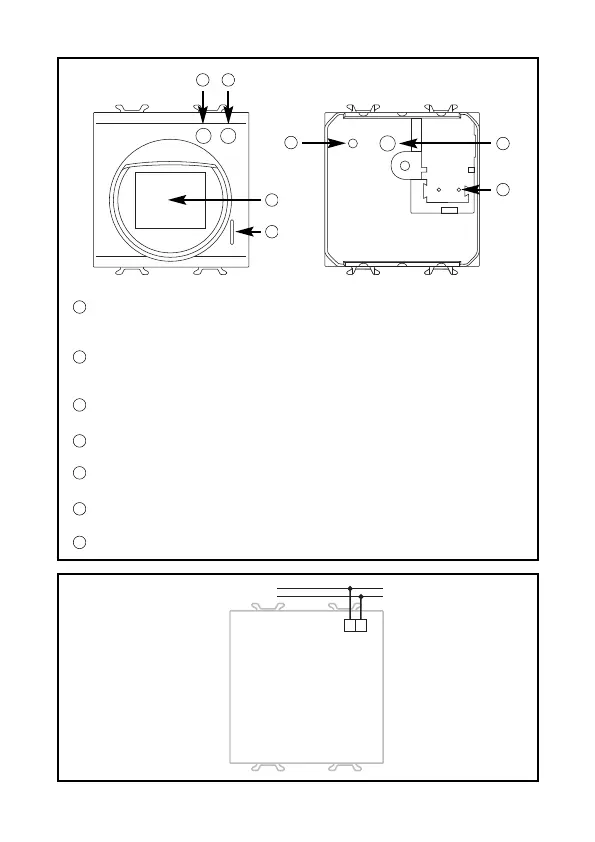
Potenziometro regolazione sensibilità luminosa - Potentiometer to regulate light
sensitivity - Potentiomètre de réglage de la sensibilité lumineuse - Potenciómetro regulación
sensibilidad luminosa - Potentiometer Einstellung Helligkeitsempfindlichkeit
Potenziometro regolazione periodo di trasmissione - Potentiometer to regulate
transmission periods - Potentiomètre de réglage de la période d’émission - Potenciómetro
regulación período de transmisión - Potentiometer Einstellung Übertragungsdauer
Sensori IR e crepuscolare - IR sensors and twilight switch - Capteurs IR et capteur
crépusculaire - Sensores IR y crepuscular - IR-und Dämmerungssensoren
LED di rivelazione movimento - Movement detector LED - LED de détection de
mouvement - LED de detección de movimiento - LED für Bewegungserfassung
LED di programmazione - Programming LED - LED de programmation - LED de
programación - Programmier-LED
Tasto di programmazione - Programming key - Touche de programmation - Tecla de
programación - Programmiertaste
Terminali bus - Bus terminal - Borniers bus - Terminales bus - Busanschlüsse
2
1
3
4
5
6
7

INDICE
3
I
T
A
L
I
A
N
O
pag.
AVVERTENZE GENERALI....................................................................................... 4
DESCRIZIONE GENERALE ..................................................................................... 5
INSTALLAZIONE.................................................................................................... 7
PROGRAMMAZIONE CON UNITÀ BASE EASY....................................................... 9
MESSA A PUNTO .................................................................................................. 10
IN SERVIZIO.......................................................................................................... 11
DATI TECNICI ........................................................................................................ 12
Termékspecifikációk
Márka: | Gewiss |
Kategória: | mozgásérzékelő |
Modell: | GW12756 |
Szüksége van segítségre?
Ha segítségre van szüksége Gewiss GW12756, tegyen fel kérdést alább, és más felhasználók válaszolnak Önnek
Útmutatók mozgásérzékelő Gewiss
27 Augusztus 2024
27 Augusztus 2024
27 Augusztus 2024
27 Augusztus 2024
27 Augusztus 2024
27 Augusztus 2024
27 Augusztus 2024
27 Augusztus 2024
27 Augusztus 2024
27 Augusztus 2024
Útmutatók mozgásérzékelő
- mozgásérzékelő RAB
- mozgásérzékelő Aqua Joe
- mozgásérzékelő Ledvance
- mozgásérzékelő EQ-3
- mozgásérzékelő Pepperl+Fuchs
- mozgásérzékelő Schneider
- mozgásérzékelő Konig
- mozgásérzékelő Nedis
- mozgásérzékelő Joy-It
- mozgásérzékelő Hikvision
- mozgásérzékelő DSC
- mozgásérzékelő Legrand
- mozgásérzékelő Cotech
- mozgásérzékelő Techly
- mozgásérzékelő Massive
Legújabb útmutatók mozgásérzékelő
8 Április 2025
8 Április 2025
5 Április 2025
1 Április 2025
1 Április 2025
1 Április 2025
1 Április 2025
28 Március 2025
27 Március 2025
9 Január 2025