Használati útmutató Vimar 03810
Vimar
Riasztórendszer
03810
Olvassa el alább 📖 a magyar nyelvű használati útmutatót Vimar 03810 (4 oldal) a Riasztórendszer kategóriában. Ezt az útmutatót 9 ember találta hasznosnak és 5 felhasználó értékelte átlagosan 4.5 csillagra
Oldal 1/4

Viale Vicenza, 14
36063 Marostica VI - Italy
www.vimar.com
49401661A0 01 2212
03810
BY-ALARM PLUS
Modulo comunicatore GSM By-alarm Plus, configurabile per invio/ricezione di
messaggi SMS, invio messaggi vocali, notifiche in protocollo SIA-IP, conteni-
tore plastico non protetto.
Il dispositivo consente di inviare automaticamente, attraverso la rete GSM e a qualunque numero
di telefono, tutte le comunicazioni di allarme, di guasto o anomalia, con le modalità che seguono:
• Chiamate vocali utilizzando la scheda vocale 03813 installata in centrale.
• Trasmissione eventi SIA-IP
• Invio SMS per ciascun evento utilizzando la descrizione fornita dal registro eventi di tastiera
Il dispositivo può comunicare con la centrale a seguito della ricezione dei comandi attivati nei
seguenti modi:
- SMS inviati dall'utente;
- chiamata da numero/i di telefono utente configurati (CALLER-ID).
Il comunicatore utilizza la tecnologia "VoLTE" per effettuare chiamate vocali attraverso la rete 4G.
Se tale tecnologia non è attivata il dispositivo utilizza automaticamente la rete disponibile (3G
o 2G).
Attenzione: Non si garantisce la piena disponibilità di tutte le funzioni inerenti ai servizi mobile
descritte per qualsiasi combinazione di fornitore, tipologia di SIM e modello di apparecchio
telefonico utilizzati.
COLLEGAMENTI
Il collegamento con la centrale va effettuato con un cavo schermato a 4 (o più) fili.
Attenzione: La calza va collegata ad uno dei morsetti di massa (o GND) solo dal lato della
centrale e deve seguire tutto il BUS senza essere collegata a massa in altri punti.
Il collegamento della scheda va effettuato sui morsetti “+ D S -” della centrale.
Collegare il cavo dell'antenna al connettore "H".
SEGNALAZIONI DEI LED E PULSANTI
Led Modalità Significato
L1 - Comunicazione
Verde
Lampeggiante Comunicazione con la centrale in corso
Spento Assenza di comunicazione
L2 - Emergenza
Rosso
Lampeggiante Sabotaggio in corso o guasto nel bus
Spento Nessun sabotaggio o guasto
L3 - Guasti
Verde
Lampeggiante Guasto del comunicatore
Spento Nessun guasto
L4 - Connessione
Rosso
Lampeggio lento Dispositivo registrato nella rete GSM
Lampeggio moderato
Dispositivo non registrato e in ricerca
dell’operatore
Lampeggio veloce Scambio dati in corso
Spento Comunicatore spento
Pulsante P1
Premere il pulsante P1 per visualizzare il livello di segnale attraverso l'accensione dei led. La
visualizzazione dura 5 s.
Led Modalità Significato
L1
Lampeggiante Segnale insufficiente
Acceso Segnale debole
L1 + L2 Accesi Segnale buono
L1 + L2 + L3 Accesi Segnale ottimo
Pulsante P2
In caso di accensione del led L3 e quindi in presenza di un guasto, premere il pulsante P2 per
conoscerne la causa attraverso i led L1, L2 e L3.
Led Modalità Significato
Lampeggiante Batteria scarica
L2 Lampeggiante
Mancato sblocco della scheda SIM
Scheda SIM mancante
Segnale insufficiente
Dispositivo non registrato con l'operatore
mobile
L3 Accesi Segnale ottimo
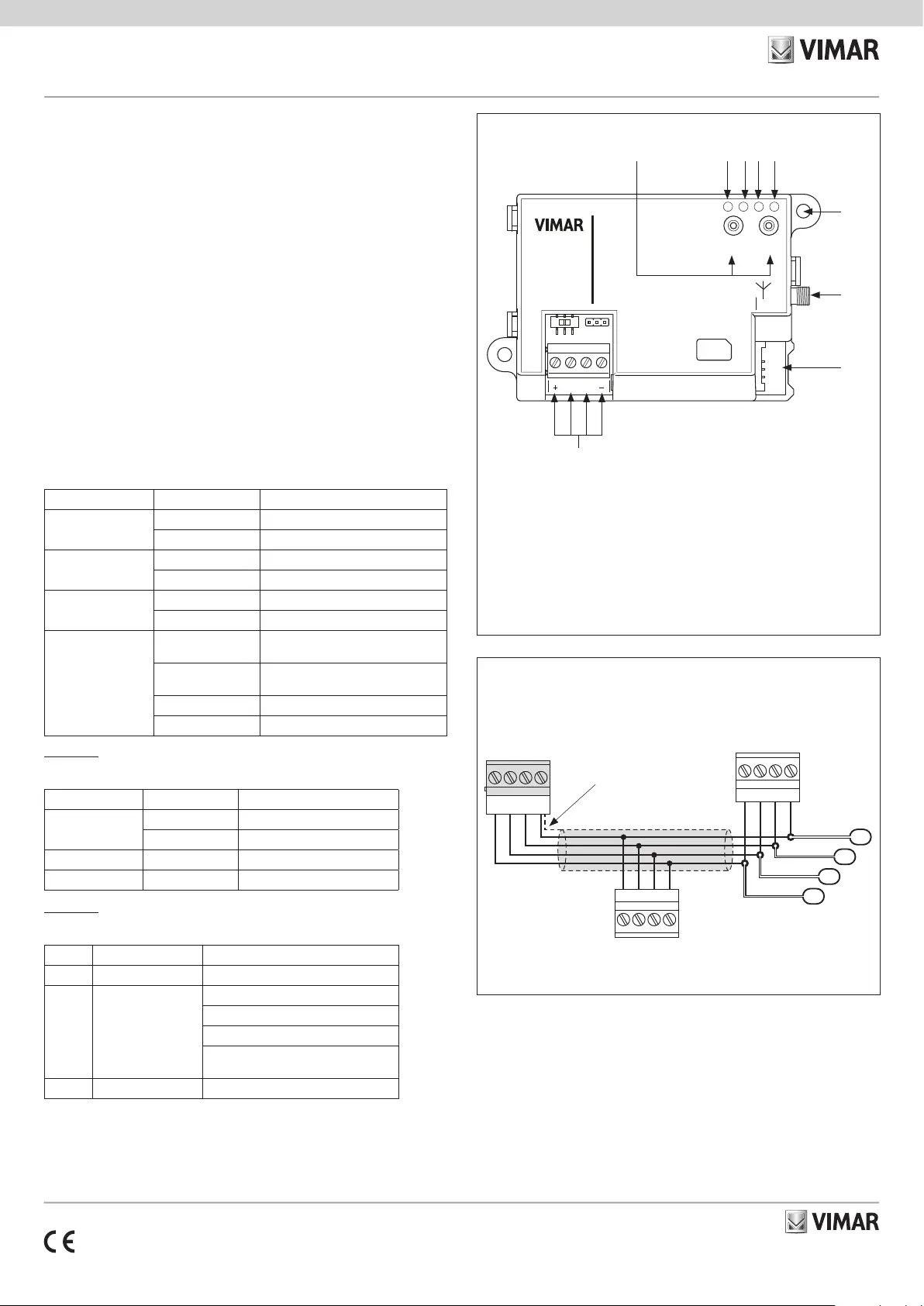
VISTA FRONTALE
A: Morsetti +, D, S, - per il collegamento del BUS
B: Pulsanti P1 e P2
C: Led L1 - Comunicazione
D: Led L2 - Emergenza
E: Led L3 - Guasti
F: Led L4 - Connessione
G: Foro di fissaggio
H: Connettore per antenna
I: Alloggiamento per scheda SIM
A
C
COLLEGAMENTI
INSTALLAZIONE
Il modulo comunicatore 03810 non dispone di protezione antisabotaggio integrata ed espone i
cavi utilizzati ad eventuali manomissioni.
E' dunque opportuno proteggere i collegamenti e il dispositivo stesso installandolo dentro una
scatola, ossia:
• scatola della centrale utilizzando gli appositi fori
• scatola di derivazione
• quadro elettrico
Nota: Ai fini della conformità alla norma 50131, l'involucro utilizzato ed il dispositivo devono
essere dotati di una protezione anti-sabotaggio.
SIM CARD
SIM CARD
ANTENNA
P1
L4L3L2L1
P2
D
2
S
31 4
4G PHONE DIALER
03810
By-alarm Plus
D E F
G
H
I
B
D+ –S
D+ –S
D+ –S
S
–
D
+
Centrale
03800
03801
03802
BUS
Calza
Altri dispositivi
BUS
Modulo
comunicatore
03810
Termékspecifikációk
| Márka: | Vimar |
| Kategória: | Riasztórendszer |
| Modell: | 03810 |
Szüksége van segítségre?
Ha segítségre van szüksége Vimar 03810, tegyen fel kérdést alább, és más felhasználók válaszolnak Önnek
Útmutatók Riasztórendszer Vimar
2 Április 2025
2 Április 2025
2 Április 2025
2 Április 2025
16 December 2024
16 December 2024
16 December 2024
16 December 2024
16 December 2024
16 December 2024
Útmutatók Riasztórendszer
- Riasztórendszer Kodak
- Riasztórendszer Hama
- Riasztórendszer Vivanco
- Riasztórendszer Olympia
- Riasztórendszer KlikaanKlikuit
- Riasztórendszer DESQ
- Riasztórendszer Schneider
- Riasztórendszer Doro
- Riasztórendszer Woonveilig
- Riasztórendszer Yale
- Riasztórendszer Dahua Technology
- Riasztórendszer Burg Wächter
- Riasztórendszer Brennenstuhl
- Riasztórendszer Optex
- Riasztórendszer Eminent
Legújabb útmutatók Riasztórendszer
22 Március 2025
11 Január 2025
5 Január 2025
5 Január 2025
5 Január 2025
5 Január 2025
5 Január 2025
4 Január 2025
4 Január 2025
2 Január 2025